TAKUTOが届けるリノベーション事例紹介サイト「Renone」

Renone-リノン-

TAKUTOが届けるリノベーション事例紹介サイト「Renone」

088

異素材と直線

多くある賃貸物件の中で、ナチュラルテイストは多く取り入れられています。使いやすく、レイアウトもしやすいことから重宝されていますが、多すぎるあまり差別化も難しいとされています。写真や内覧で差をつけるため、今回は異素材MIX×ラインライトを用いて空間をアクセント付けることで、インパクトを持たせお客様の目に留まる部屋へリノベーションします。特別間のある内装・設備も充実させ、すべての面で優位性が増し、数あるナチュラルテイストの中でも目を惹く場所へ。

東京都文京区
築年数
27年
種別
マンション
構造
SRC造
面積
54m2
工期
37日
改修費用
7,670,000円
賃料UP率
29.2%

DESING PLAN

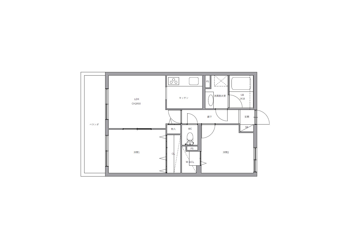
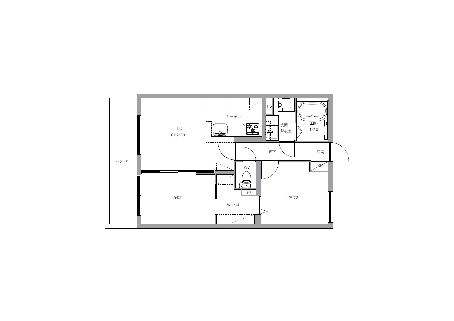
2LDK→2LDK

ナチュラルな中に映える異素材。 空間のアクセントを取り入れ、目を惹く場所へ。

Before
After

BEFORE

#088
OTHER
WORKS
CONTACT

ご依頼やご相談については、
お問合せフォームより
お気軽にお問い合わせください。