TAKUTOが届けるリノベーション事例紹介サイト「Renone」

Renone-リノン-

TAKUTOが届けるリノベーション事例紹介サイト「Renone」

072

ひらいてつながる

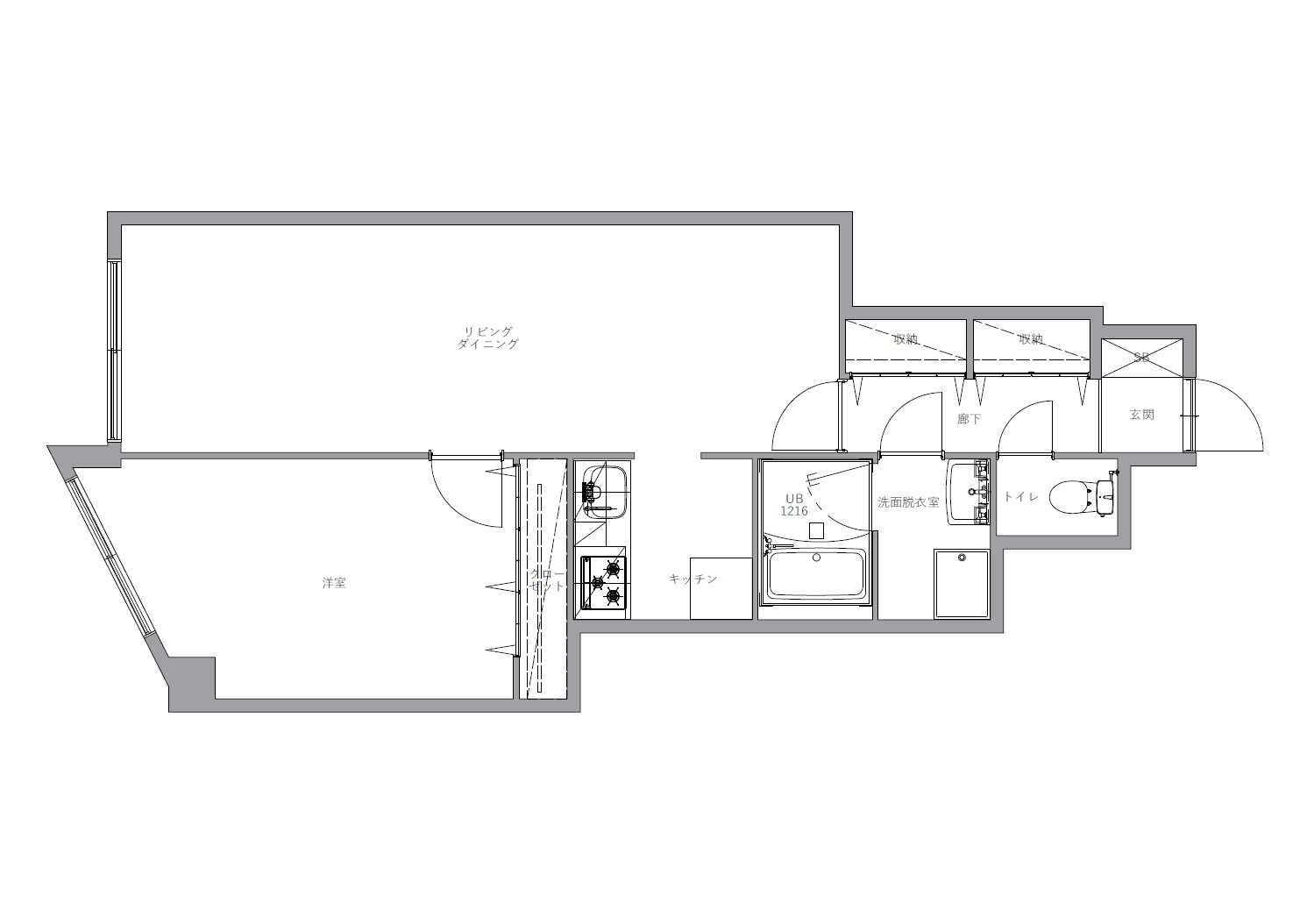
もともと縦に長く扱いずらかったLDKを見直し、空間の流れに沿って収納やキッチンの配置を再設計。キッチンは閉鎖的な壁付けから、腰壁に収納を付けたカウンターキッチンへ変更。手元は隠しながらも、リビングやダイニングとのつながりをつくることで、家族との会話や気配が自然と交わる設計にしました。 収納のポイントは、“閉じない”収納棚と間接照明で魅せる演出。しまうだけでなく、空間を整えながら暮らしの一部を楽しめる仕掛けです。 毎日の家事や会話がスムーズにできることで、家族がのびのびと過ごせるお部屋を実現しました。「ひらいてつながる」ことで、家族の動線と暮らしがすっきり整います。

東京都文京区
築年数
25年
種別
マンション
構造
RC造
面積
56.24m2
工期
37日
改修費用
6,650,000円
賃料UP率
66.7%

DESING PLAN

1LDK→1LDK

日常がうまく回る、家族の動線と収納の形。

Before
After

BEFORE

#072
OTHER
WORKS
CONTACT

ご依頼やご相談については、
お問合せフォームより
お気軽にお問い合わせください。