TAKUTOが届けるリノベーション事例紹介サイト「Renone」

Renone-リノン-

TAKUTOが届けるリノベーション事例紹介サイト「Renone」

070

ラフシック・リビング

「ラフシック(Rough Chic)」は、「ラフ(粗野、無骨)」と「シック(洗練された、おしゃれ)」を組み合わせた造語で、カジュアルさや無骨さ、粗さを感じさせる素材やデザインを、洗練された美しさで仕上げるスタイルを指します。グレーを基調としたカウンターキッチンに、印象的なブルックリンタイル調のアクセントクロスが程よいスパイスを効かせるLDK空間。そこから自然に伸びるダイニングテーブルは、暮らしの中心として人が集まる場に。 ナチュラルな木目の内装が、都会的な素材の中にも温もりを添え、無骨さとやさしさが心地よく同居します。スタイルにとらわれすぎない“ラフだけど品のある”暮らしを叶える住まいです。

大阪府大阪市
築年数
29年
種別
マンション
構造
RC造
面積
64.02m2
工期
40
改修費用
3,560,000円
賃料UP率
15.8%

DESING PLAN

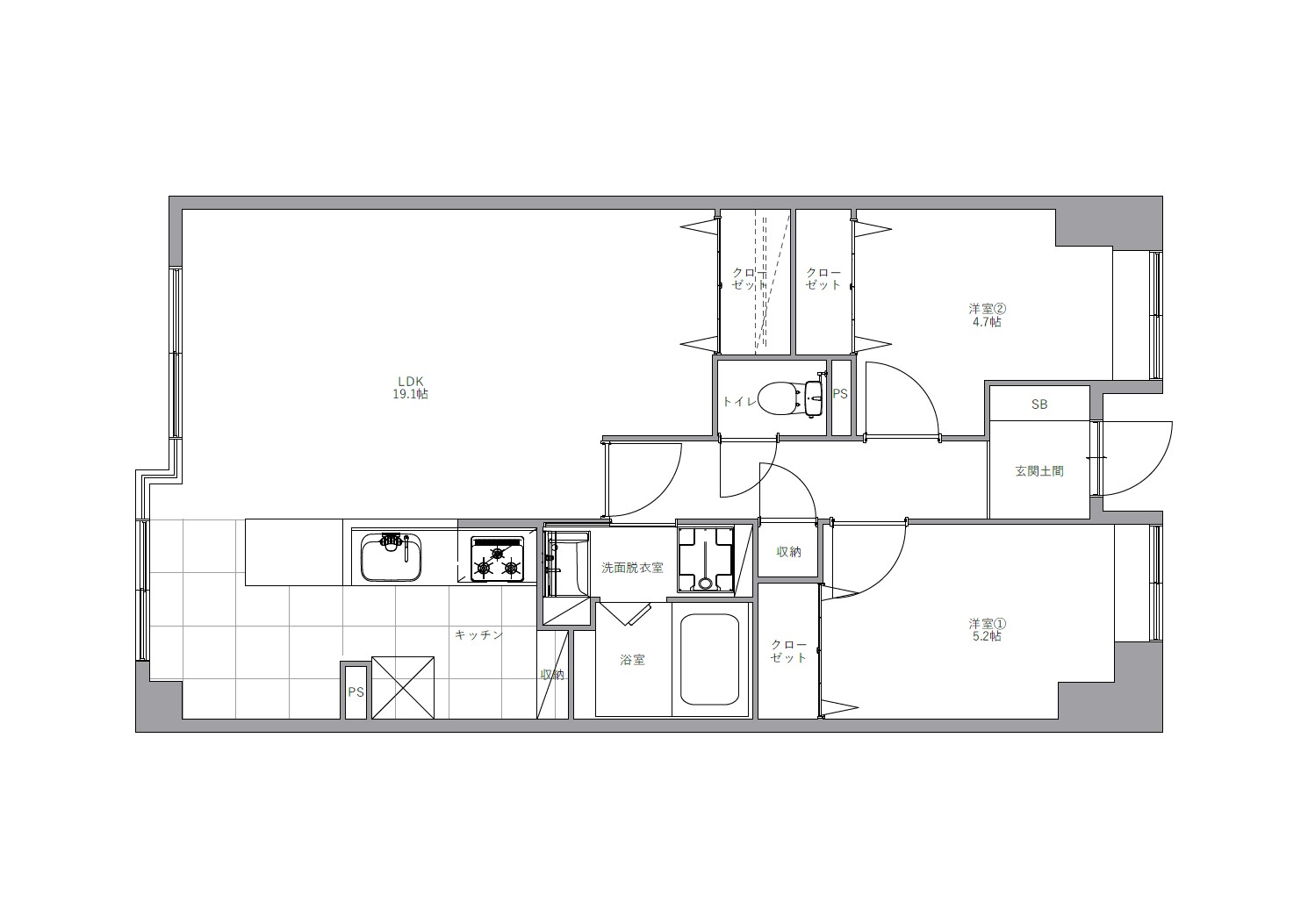
3LDK→2LDK

無骨さと温もりが融合する、品のある空間

Before
After

BEFORE

#070
OTHER
WORKS
CONTACT

ご依頼やご相談については、
お問合せフォームより
お気軽にお問い合わせください。