TAKUTOが届けるリノベーション事例紹介サイト「Renone」

Renone-リノン-

TAKUTOが届けるリノベーション事例紹介サイト「Renone」

069

variety material

LDKに入ったとき、目に入るのは曲線を描いた大きな窓。大きな窓から入るたくさんの陽の光を大切に、ご家族が集う空間がより明るくなるようにプランニングを行いました。 このお部屋の特徴は様々な素材を取り入れていること。曲線の窓、天井に入れた木目のクロス、さらにテレビを配置する面には石目調のクロス。丸、木、石といった様々な要素を一つの空間にギュッと集めました。それぞれの要素がぶつかりあうのではなく、集まることでよりこのお部屋の良さが際立つそのようなデザインを行っております。

京都府京都市
築年数
18年
種別
マンション
構造
RC造
面積
59.91m2
工期
41日
改修費用
2,810,000円
賃料UP率
44%

DESING PLAN

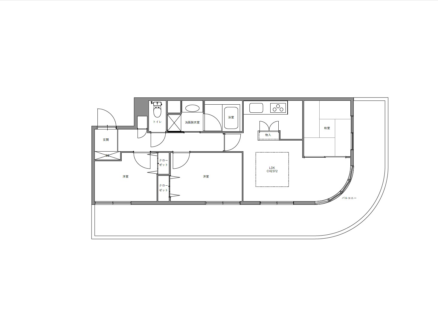
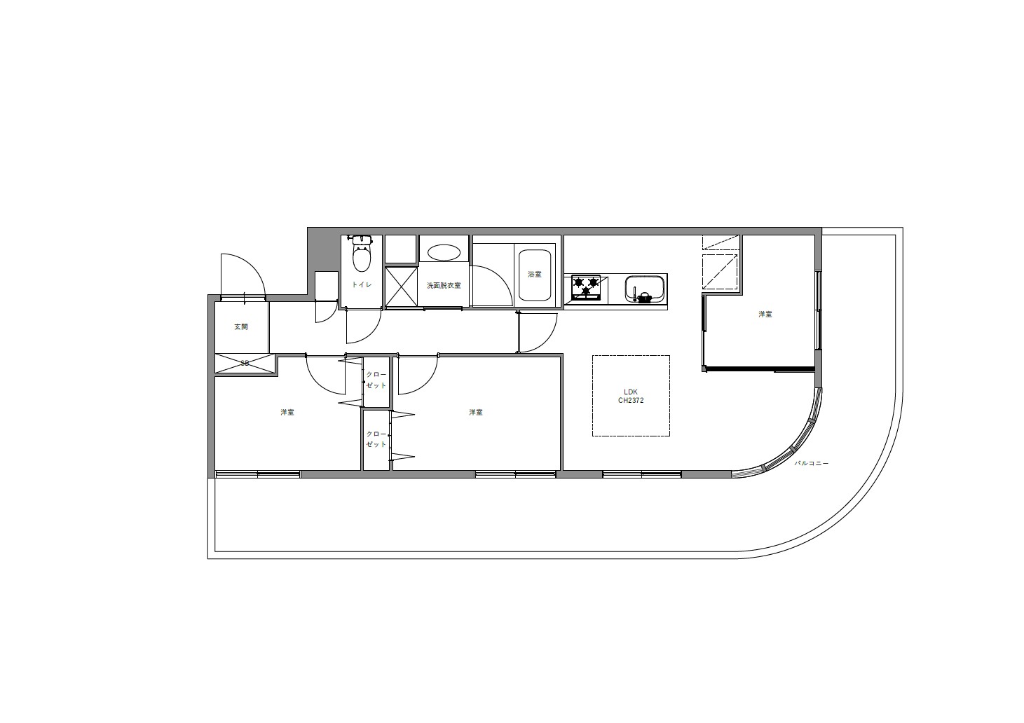
3LDK→3LDK

丸×木×石 異素材の相乗効果

Before
After

BEFORE

#069
OTHER
WORKS
CONTACT

ご依頼やご相談については、
お問合せフォームより
お気軽にお問い合わせください。