TAKUTOが届けるリノベーション事例紹介サイト「Renone」

Renone-リノン-

TAKUTOが届けるリノベーション事例紹介サイト「Renone」

066

海辺のやさしさ

海辺の風を感じるような、温かみのある爽やかなキッチン空間が、このお部屋の一番の見どころです。青いタイルと木目のクロスの調和に、氷のような透明感のあるペンダントライトがアクセントとなり、ナチュラルで心地よい空間に仕上がりました。さらに、バラバラに配置されていた水回りをひとつのエリアにまとめ、家事動線を大幅に改善。限られた面積でも、使いやすさと機能性を両立させました。収納面でも、しっかりと容量のあるウォークインクローゼットを設置。日常の使いやすさを高めつつ、内装のやわらかさと照明の透明感で、住まう人の心も穏やかに整えるような空間い仕上げました。

東京都江戸川区
築年数
35年
種別
マンション
構造
RC造
面積
52.78m2
工期
54日
改修費用
6,300,000円
賃料UP率
-%

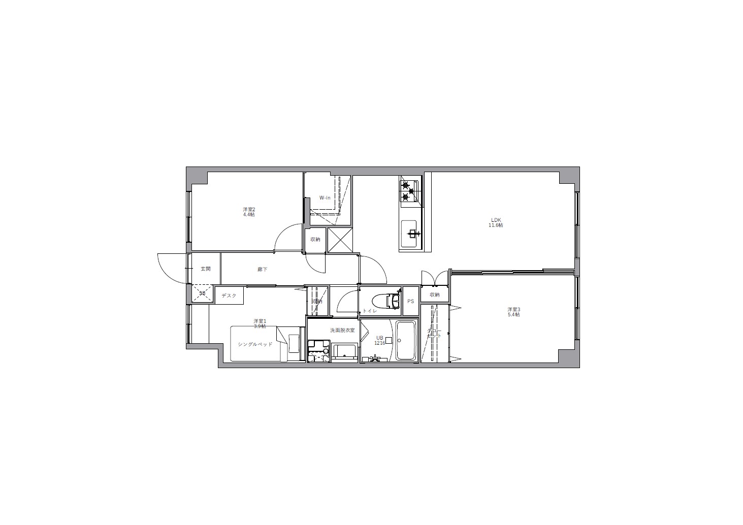
DESING PLAN

3LDK→3LDK

やさしい青と木のぬくもりで包み込まれるキッチン 空間デザインと暮らしやすさの調和

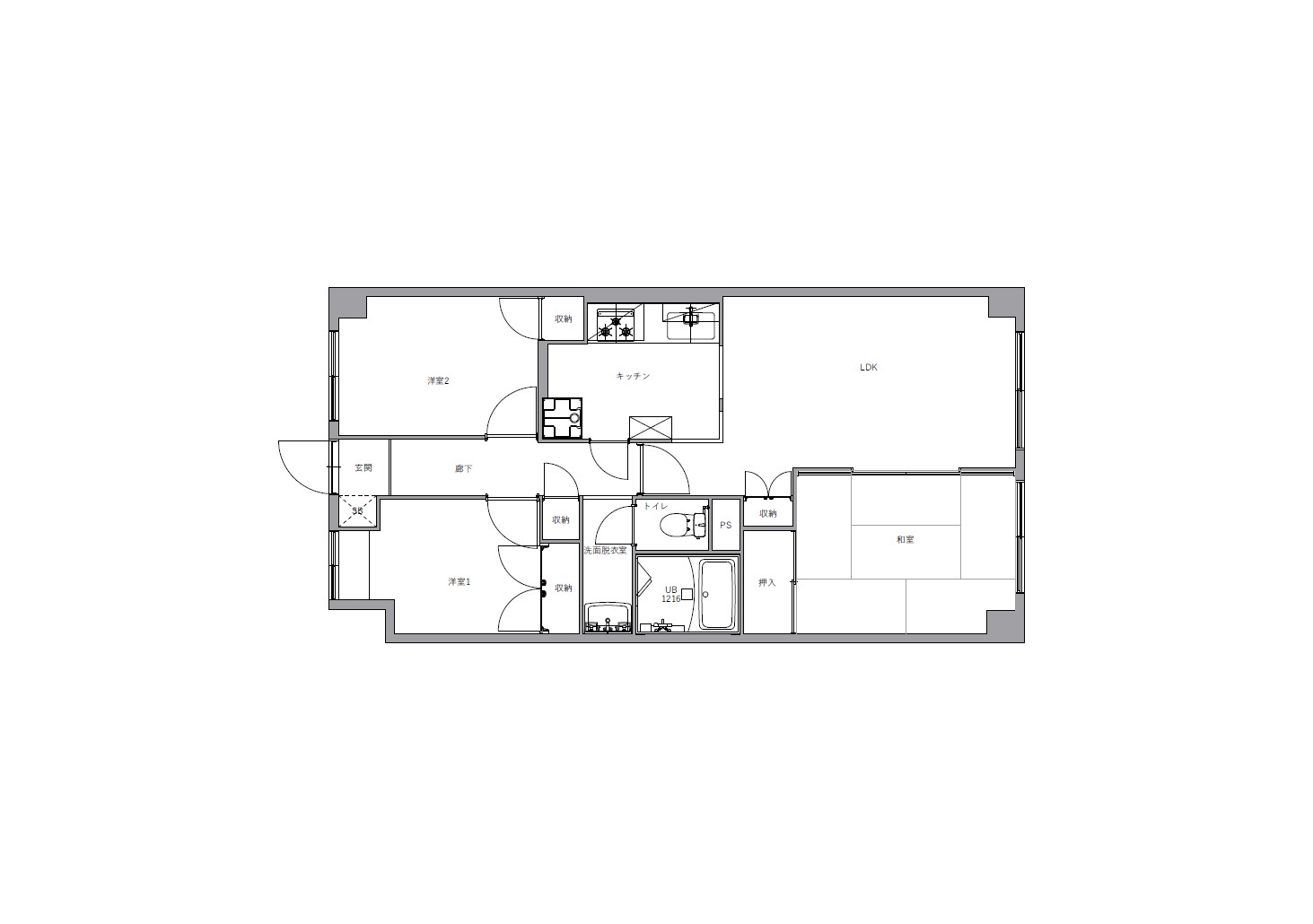
Before
After

BEFORE

#066
OTHER
WORKS
CONTACT

ご依頼やご相談については、
お問合せフォームより
お気軽にお問い合わせください。