TAKUTOが届けるリノベーション事例紹介サイト「Renone」

Renone-リノン-

TAKUTOが届けるリノベーション事例紹介サイト「Renone」

065

家事「楽」

まとまりのあるデザイン性と機能的な回遊性で、キッチン家事が「楽」になると、人気の横並びダイニング。対面キッチンとダイニングテーブルを横並びに並列させたレイアウトで、忙しい調理・配膳・片付けといった家事動線の負担減だけではなく、キッチンとダイニングのおしゃれなつり合いが取れたコーディネートにも役立つアイデアです。 対面レイアウトではお互いが向き合って会話ができましたが、横並びレイアウトでは横に並ぶため、お互いの距離がグッと縮まります。より高いコミュニケーションを取ることができ、家族団欒の時間がより充実することでしょう。

京都府
築年数
23年
種別
マンション
構造
RC造
面積
68.2m2
工期
28日
改修費用
3,700,000円
賃料UP率
27.3%

DESING PLAN

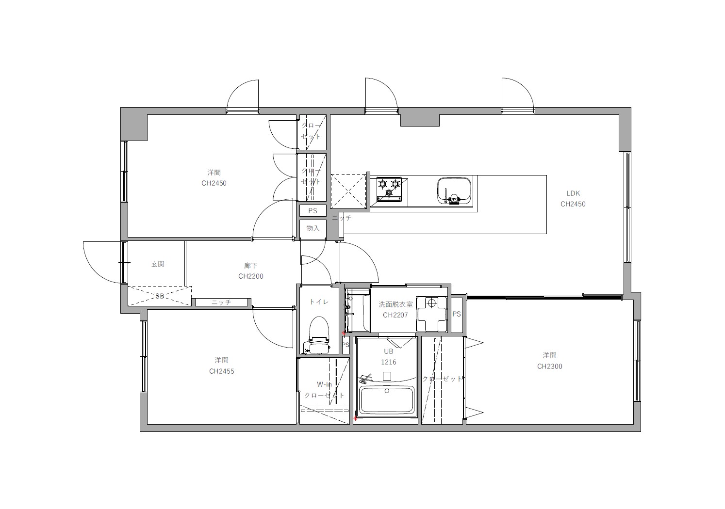
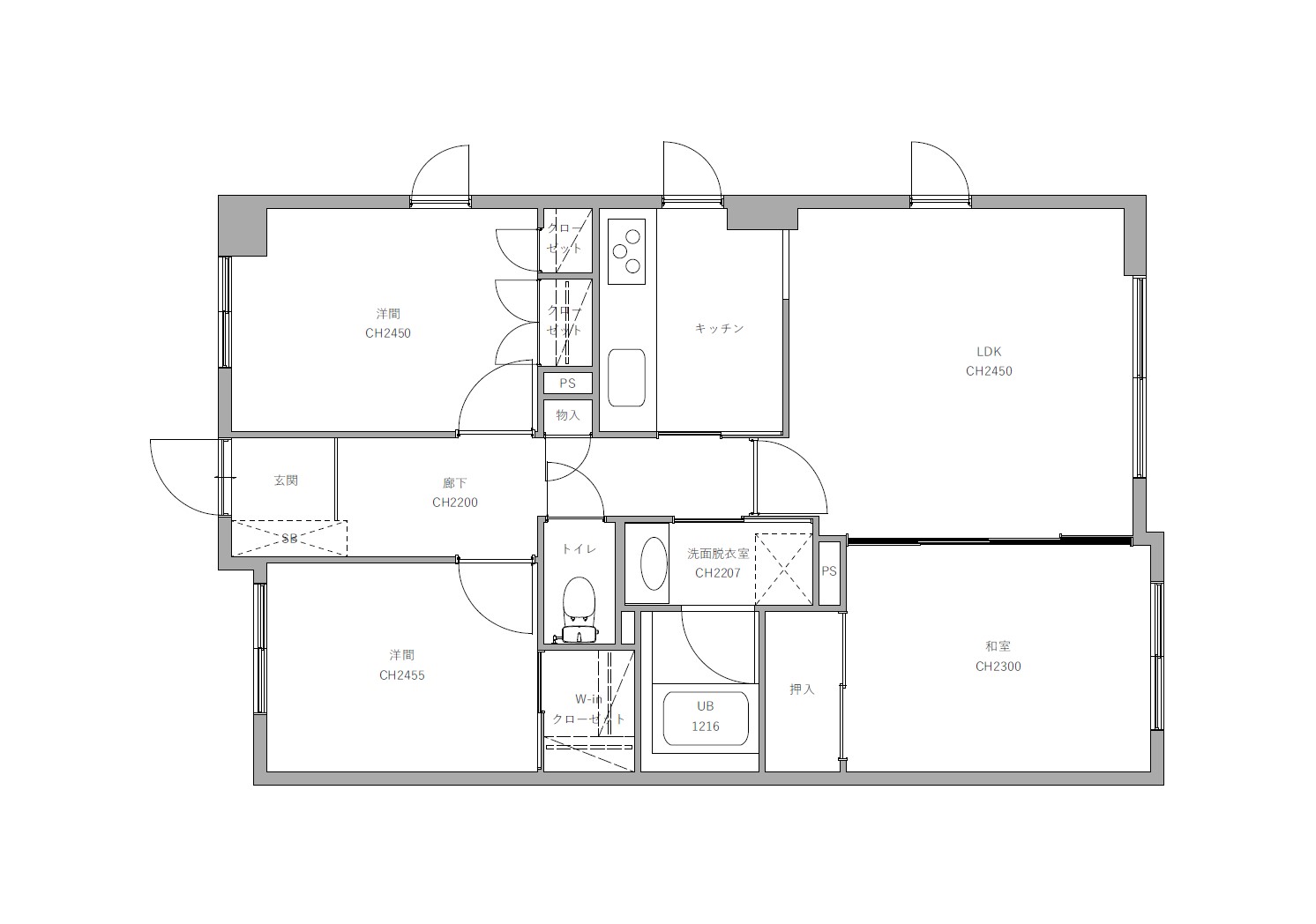
3LDK→3LDK

近い距離で。もっと楽に。

Before
After

BEFORE

#065
OTHER
WORKS
CONTACT

ご依頼やご相談については、
お問合せフォームより
お気軽にお問い合わせください。