TAKUTOが届けるリノベーション事例紹介サイト「Renone」

Renone-リノン-

TAKUTOが届けるリノベーション事例紹介サイト「Renone」

063

最小限で最大の豊かさを

ミニマルライフは、物に溢れる現代社会において、自分にとって本当に大切なものだけを選び取るライフスタイルです。限られたスペースや物の中でも、機能的で美しいものだけを厳選し、余計なものを削ぎ落とすことで、心の余裕と暮らしの豊かさを生み出します。 シンプルなデザインと実用性が調和した空間は、精神的な余裕を生み出し、心地よい環境を提供します。物質的な豊かさだけでなく、精神的にも満たされるような、シンプルで心地よい生活を提案します。

大阪府大阪市
築年数
47年
種別
マンション
構造
S造
面積
20.54m2
工期
46日
改修費用
2,500,000円
賃料UP率
35.1%

DESING PLAN

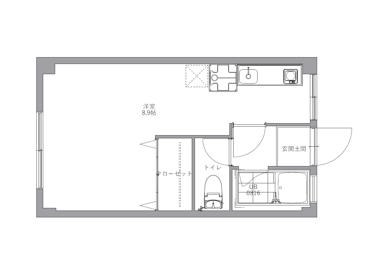
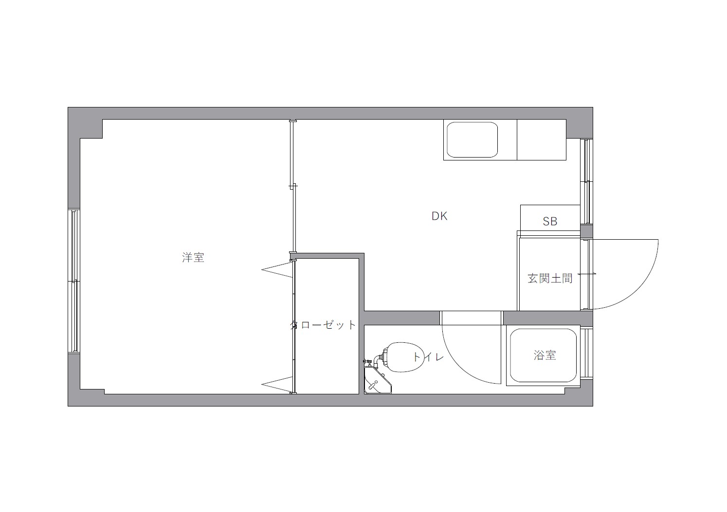
1K → 1R

シンプルに心地よく。一人の時間を大切にできるお部屋

Before
After

BEFORE

#063
OTHER
WORKS
CONTACT

ご依頼やご相談については、
お問合せフォームより
お気軽にお問い合わせください。