TAKUTOが届けるリノベーション事例紹介サイト「Renone」

Renone-リノン-

TAKUTOが届けるリノベーション事例紹介サイト「Renone」

061

ヘリンボーンの魅力

濃い木目のヘリンボーン柄が空間の中心に存在感を放ち、カウンターキッチンから自然に延びるダイニングテーブルへと繋がるこのLDKは、温かみと洗練が調和した空間です。ヘリンボーンのディテールが作り出す美しいラインは、どこかクラシカルでありながらも現代的な感覚を併せ持ち、落ち着きと品のある暮らしを演出します。 またアクセントクロスはアースカラーをベースにトイレにはグリーンのクロスをあわせたりと無駄のないデザインでありながらも、心が安らぐ洗練された暮らしを感じさせるお部屋となりました。

大阪府大阪市
築年数
29年
種別
マンション
構造
RC造
面積
64.02m2
工期
51日
改修費用
3,380,000円
賃料UP率
15.8%

DESING PLAN

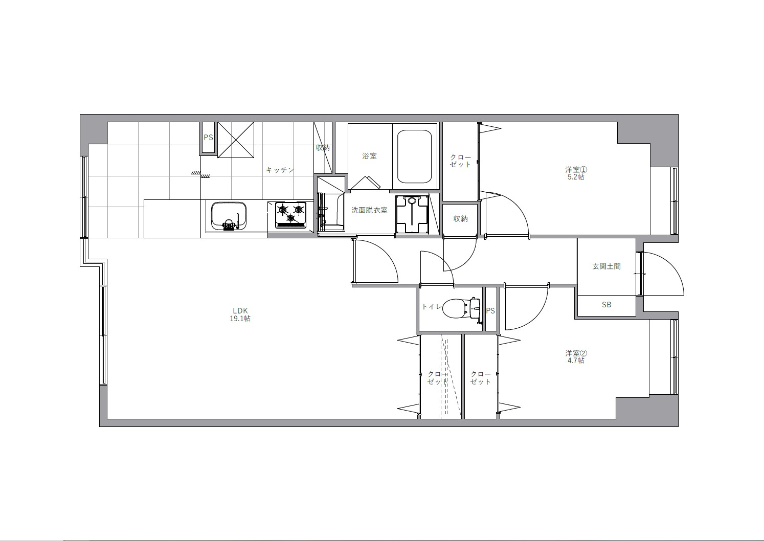
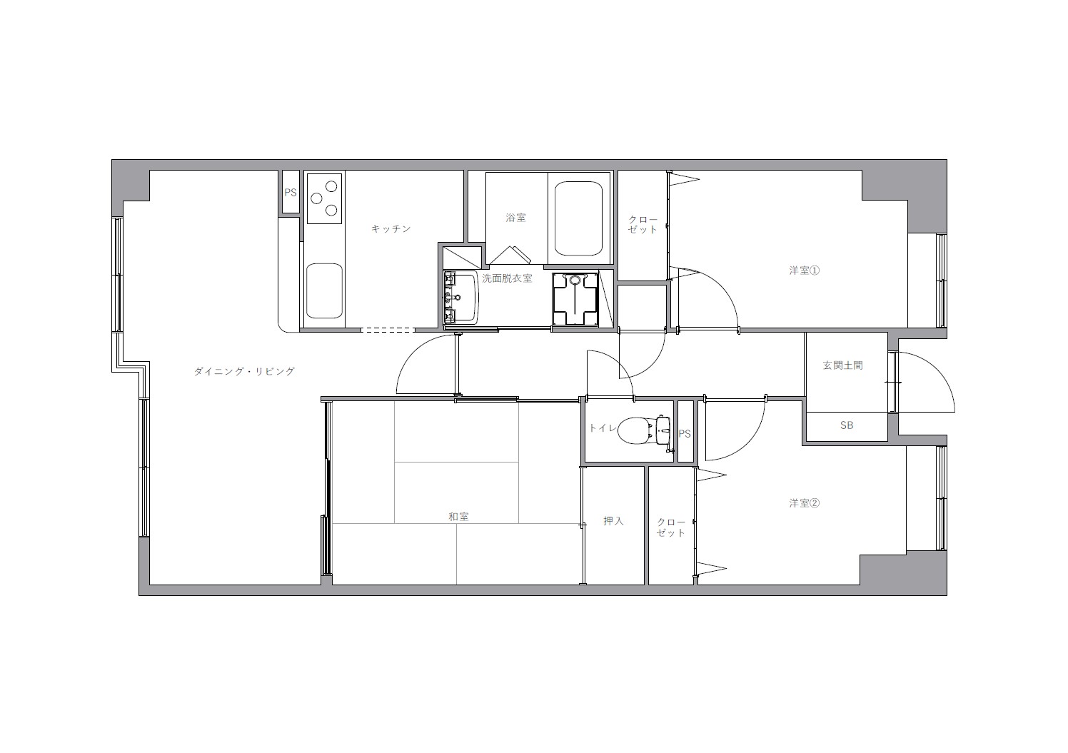
3LDK→2LDK

クラシカルなディテールが現代的な感覚を引き立てる 濃い木目と緑が調和する、心安らぐ空間

Before
After

BEFORE

#061
CONTACT

ご依頼やご相談については、
お問合せフォームより
お気軽にお問い合わせください。