TAKUTOが届けるリノベーション事例紹介サイト「Renone」

Renone-リノン-

TAKUTOが届けるリノベーション事例紹介サイト「Renone」

060

Mellow

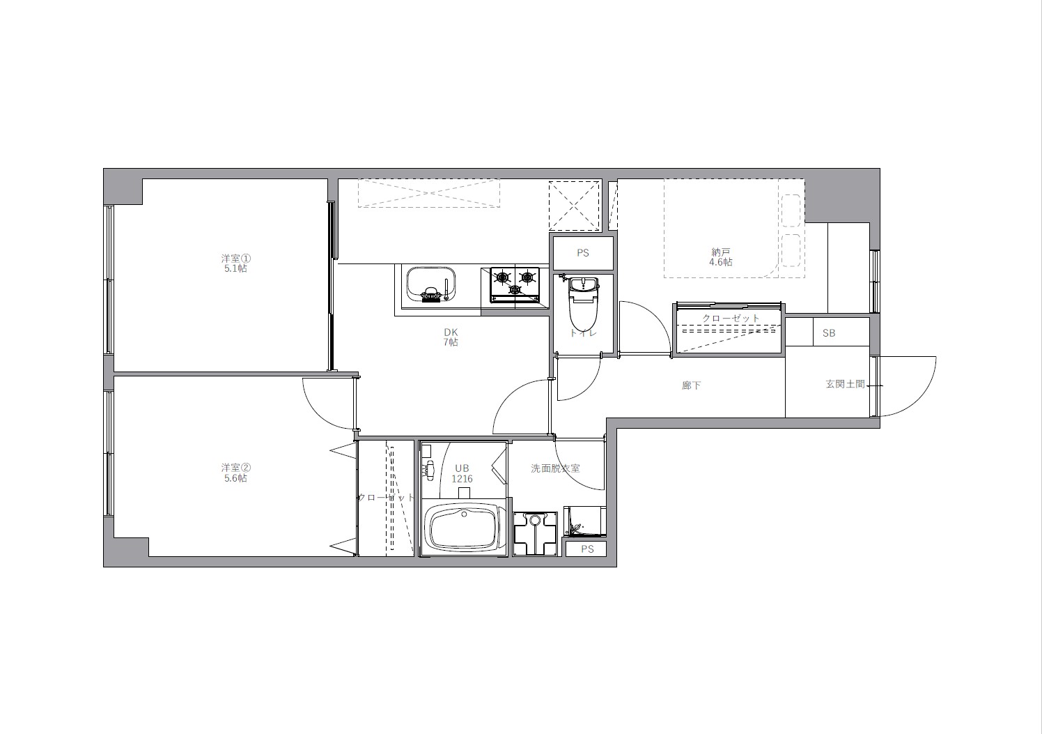
レトロでナチュラルな色味のワッフルのようなデザインタイルが目を惹く室内に。建具のカラーは淡いブルーで統一し、やさきくも印象的な空間に仕上げました。壁付けだったキッチンは対面式のカウンターキッチンに変更。家族やゲストとコミュニケーションがとりやすく、現代のライフスタイルに合った間取りへと生まれ変わりました。 Dkに隣接する洋室には、2枚引込戸を採用。扉を開けるとDKと繋がる広々とした一体空間として活用できます。 さらに洗面室には、キラキラとした質感が魅力のモザイクタイルをあしらい、細部にまでこだわったデザインで、物件全体のイメージアップを図っています。

東京都江戸川区
築年数
35年
種別
マンション
構造
RC造
面積
52.78m2
工期
63日
改修費用
6,256,000円
賃料UP率
-

DESING PLAN

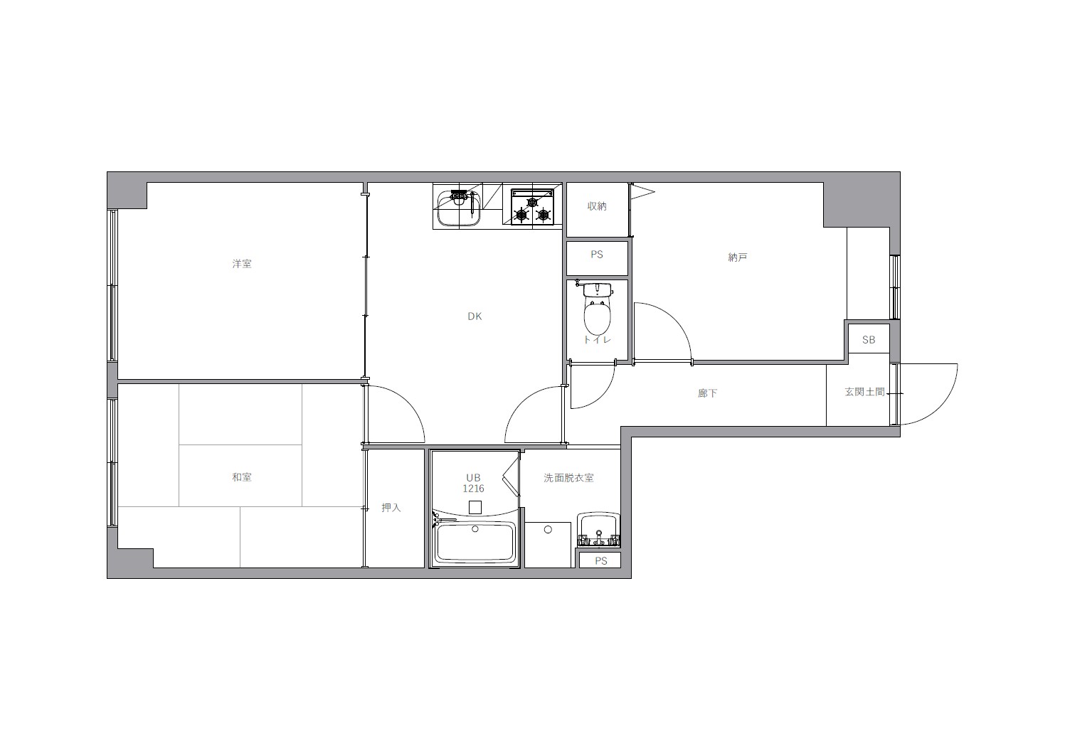
3DK→3DK

レトロな優しさに包まれる。心ほどける空間。

Before
After

BEFORE

#060
CONTACT

ご依頼やご相談については、
お問合せフォームより
お気軽にお問い合わせください。